The Forum Theatre announces a change of scenery
Since its founding in 2011, Forum Theatre Company has staged plays and musicals in multiple rented locations. Leaders say it will soon have a permanent stage.
On October 5, Forum Theatre Company's producing artistic director Kathy Page-Hauptman and associate producer Aaron Profit revealed an ambitious plan in front of a small audience of diehard theater fans who gathered inside a vacant building at 141 S. Ellis Ave. in Wichita’s Hyde Neighborhood.
Once a pressroom for printing company McCormick-Armstrong, the 14,000 square foot property is distinctly industrial, and project manager Ron Estes (not to be confused with the Kansas congressman) is leaning into that vibe. Farha Construction is handling the transition from an empty building with prominent beams and support poles to a modern, flexible, and, most importantly, permanent home for the Forum.
The cost of the project will be about $825,000, and a $1 million capital campaign is underway. The Forum has raised $200,000 to date, Page-Hauptman said. Details will be available online when the theater launches its new website.

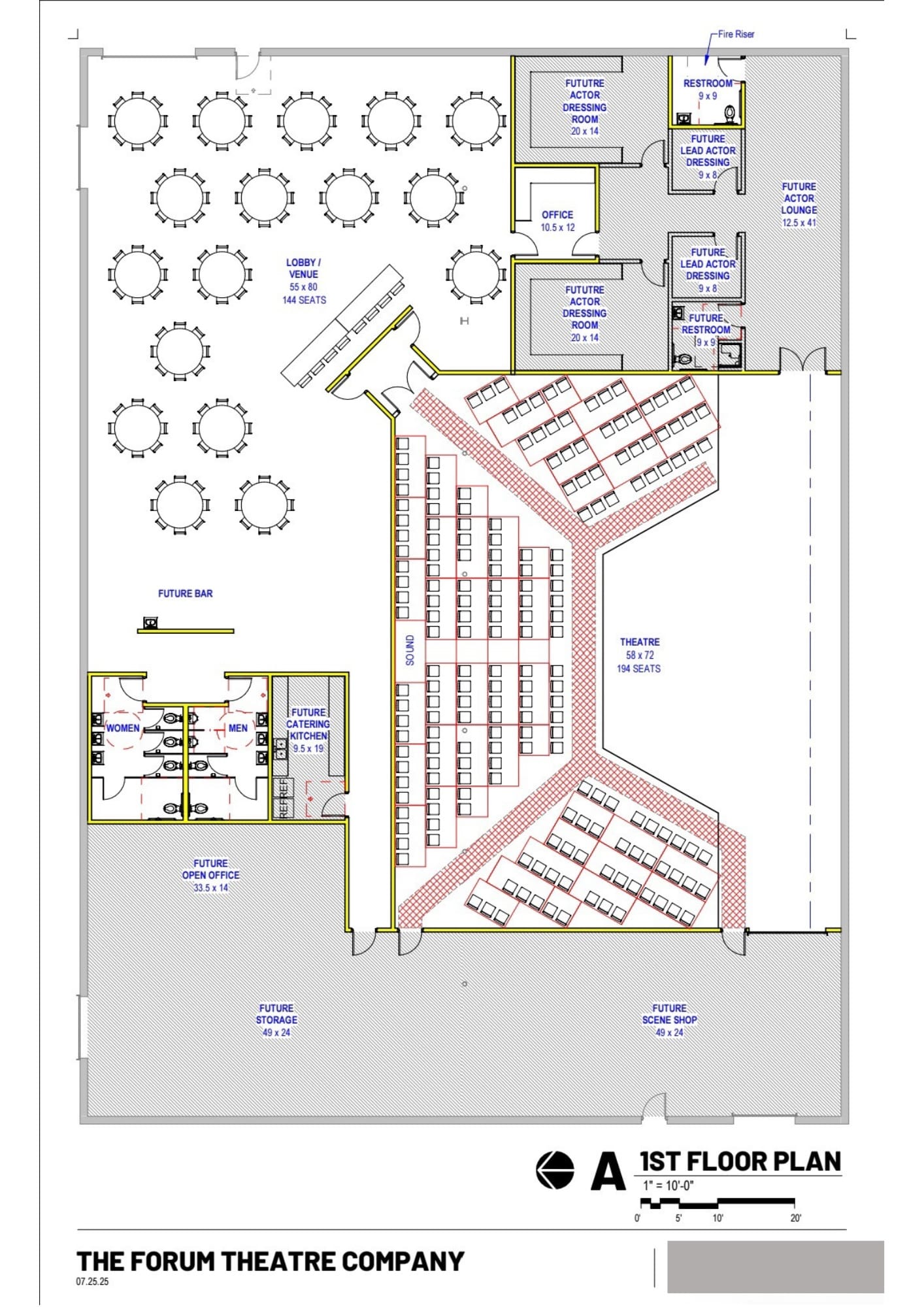
The facade of the building will include large windows and bright lighting. Initial plans include space for an audience of 190 with seats that can be reconfigured to accommodate a variety of staging options, dressing rooms, a catering kitchen, a green room, restroom improvements, and a lounge that can be rented for weddings and other events.
Implementation of a two-stage construction plan begins next week, with the goal of completing basic structural needs in February 2026 to the degree that the company can begin a transition season in March, with a production of August Wilson’s “Fences” starring Profit. Phase two of the project is slated for completion in August 2026.

Meanwhile, the Forum will present three Words & Music shows this fall and winter at the Wichita Art Museum.
Since 2016, the Forum had staged productions at First United Methodist Church’s Wilke Center, 330 N. Broadway. The gymnasium converted into a black-box theater held an audience of 123.
"Good times, for sure," said Page-Hauptman, "but now it’s time for a change."
— Teri Mott is one of the co-founders of The SHOUT.
This article was originally published in our newsletter. Sign up for weekly emails and stay informed about Kansas art and culture.
Support Kansas arts writing
The SHOUT is a Wichita-based independent newsroom focused on artists living and working in Kansas. We're partly supported by the generosity of our readers, and every dollar we receive goes directly into the pocket of a contributing writer, editor, or photographer. Click here to support our work with a tax-deductible donation.